. BD Kochanova - ProjektyZeman.cz

BD Kochanova

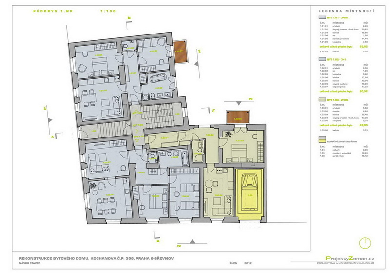
Název: Modernizace bytového domu Kochanova v Praze
Datum: 2012
Náklady: neuvedeno
Projektová část: Architektonická studie

Fotogalerie:

pxleader.cz - user friendly solutions
tvorba internetových stránek
tvorba eshopu na míru
SEO optimalizace pro vyhledávače, internetový marketing